都営新宿線『大島』駅から徒歩7分の好立地。
9階南東向きで眺望・通風良好です。
ランジュ2000ohjima 902号室
価格8,980万円 地図を見る
- 所在地 / 東京都江東区北砂5丁目19-17
- 交通 / 都営新宿線「大島」駅 徒歩7分
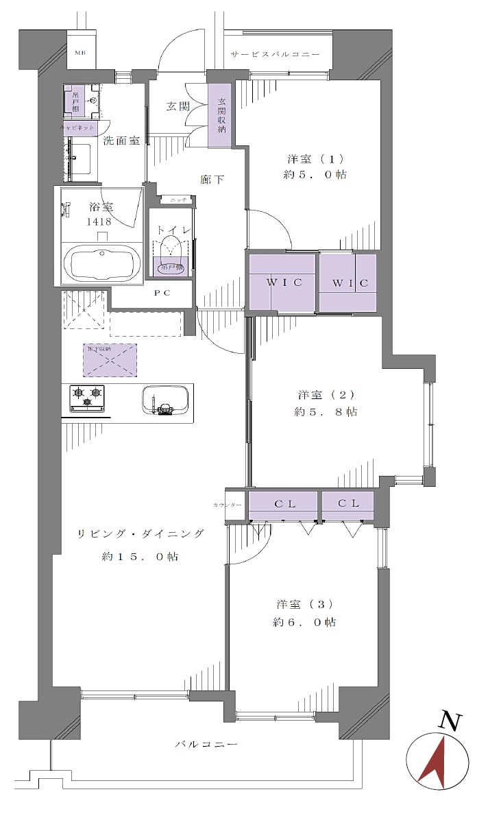
- 間取り / 3LDK+2WIC
- 専有面積 / 74.07㎡
- 地図を見る
- 物件概要
- リノベーション内容
-
- 間取り / 3LDK+2WIC
- 専有面積 / 74.07㎡
- バルコニー面積 / 9.87㎡
- 方位 / 南東
- 所在階・階建 / 9階部分・14階建
- 総戸数 / 53戸
- 建築構造 / 鉄骨鉄筋コンクリート
- 建築年月 / 平成12年1月
- 施工会社 / 古久根建設(株)
- 土地権利 / 所有権
- 用途地域 / 近隣商業地域・準工業地域
- 管理会社 / 住友不動産建物サービス(株)
- 管理形態 / 全部委託・通勤
- 管理費 / 月額12,220円
- 修繕積立金 / 月額20,030円
- 引渡し / 相談
- 備 考 / ・エスコートポーチ4.01㎡・サービスバルコニー1.87㎡・内装工事完成予定/令和8年6月上旬(内見は4月23日から可能)
-
- ◆玄関◆
玄関収納交換、人感センサー取付、床タイル張替え
◆キッチン◆
LIXIL製システムキッチン交換(ビルトイン食洗器/浄水器付水栓/3口コンロ)
◆浴室◆
TOTO製ユニットバス交換(1418/浴室換気乾燥暖房機/追炊機能)
◆洗面室◆
LIXIL製洗面化粧台交換、洗濯用防水パン、水栓交換、吊戸棚取付
◆トイレ◆
LIXIL製一体型シャワートイレ交換、吊戸棚取付
◆その他◆
フローリング貼替え、建具交換、壁・天井クロス貼替え、LED照明器具取付、給湯器交換、エアコン1基設置(洋室2)、網戸貼替え、ハウスクリーニング etc...
- ◆玄関◆
おすすめポイント
- アフターサービス保証付きマンション
- ウォークインクローゼット
- オートロック
- キッチン浄水器付
- キッチン食洗機付き
- システムキッチン
- ペット飼育可(細則有り)
- 宅配ボックス
- 浴室換気乾燥機付き
- 浴室追い焚き付き

