南東側公園のため、日照・通風良好!
2路線利用可能で交通便利
ヒルズ南浦和パークグランデージ 304号室
価格6,380万円 地図を見る
- 所在地 / 埼玉県さいたま市南区文蔵2丁目32-17
- 交通 / ●JR京浜東北線/武蔵野線「南浦和」駅 徒歩7分
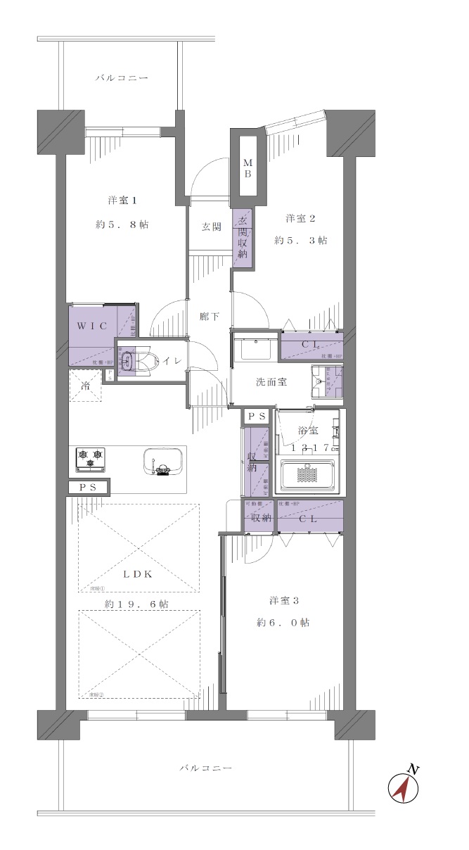
- 間取り / 3LDK+WIC
- 専有面積 / 70.22㎡
- 地図を見る
- 物件概要
- リノベーション内容
-
- 間取り / 3LDK+WIC
- 専有面積 / 70.22㎡
- バルコニー面積 / 12.20㎡
- 方位 / 南東
- 所在階・階建 / 3階部分・14階建
- 総戸数 / 72戸
- 建築構造 / 鉄骨鉄筋コンクリート・鉄筋コンクリート
- 建築年月 / 平成12年10月
- 施工会社 / (株)錢高組・飛鳥建設(株)
- 土地権利 / 所有権
- 用途地域 / 第一種住居地域
- 管理会社 / 野村不動産パートナーズ(株)
- 管理形態 / 全部委託・日勤
- 管理費 / 月額11,100円
- 修繕積立金 / 月額19,800円
- 引渡し / 相談
- 備 考 / ・プライベートバルコニー4.75㎡
・内装工事完了予定日/令和8年6月29日
-
- ◆玄関◆
床タイル張替え
◆キッチン◆
LIXIL製システムキッチン交換(ビルトイン食洗器/浄水器付水栓/3口コンロ)
◆浴室◆
LIXIL製ユニットバス交換(1317/浴室換気乾燥暖房機/追炊機能)
◆洗面室◆
LIXIL製洗面化粧台交換、洗濯用防水パン
◆トイレ◆
TOTO製一体型シャワートイレ交換、吊戸棚取付
◆その他◆
◆その他◆
建具交換、壁・天井クロス貼替え、給湯器交換、床暖房温水マット新規交換、ハウスクリーニング etc...
- ◆玄関◆
おすすめポイント
- アフターサービス保証付きマンション
- ウォークインクローゼット
- オートロック
- キッチン浄水器付
- キッチン食洗機付き
- システムキッチン
- フラット35適合物件
- フラット35S適合物件
- ペット飼育可(細則有り)
- 宅配ボックス
- 床暖房付き
- 浴室換気乾燥機付き
- 浴室追い焚き付き





